Catalogue et nouveau site bientôt disponibles

Chantal 122

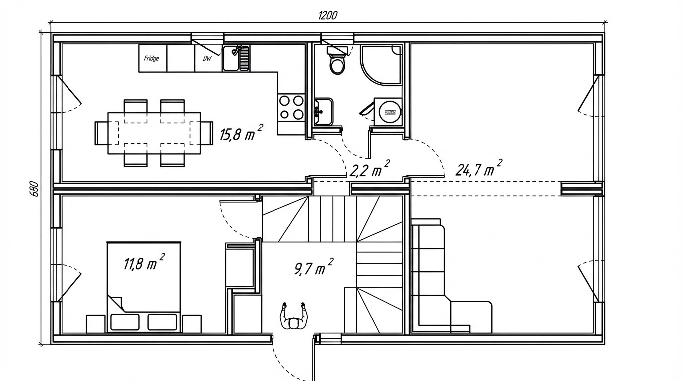
Surface · 122 m²
Chambre · 3
Salles de bain · 2
WC ·
Structure: Ossature bois
Usage: Airbnb
Réf.

À partir de

171 250€
Dès 0€/mois
Fabrication en 3 semaines
Livraison en jours
Installation en jours

Plan 2D

Spécifications

GÉNÉRAL (STRUCTURE 2 ÉTAGES)
Nombre de modules3 (Transportés en 4 pièces)
Surface totale122 m²
Dimensions extérieures12 x 6.8 x 7.2 m (L x l x H)
Dimensions de transport12.4 x 3.55 x 3.3 m (x4 unités)
Hauteur sous plafond2.8 m / 1.65 – 2.82 m
IsolationPlancher/Plafond : 200/150 mm (laine minérale)
Murs : 150 mm (laine basaltique)
StructureBois sec calibré, protégé par traitement biologique
FINITIONS
ToitureProfil trapézoïdal
Façade extérieureÉpicéa scandinave
FenêtresDouble vitrage métal-plastique laminé (Haute performance)
PortesEntrée métallique, Intérieures MDF
Murs intérieursPlaques de plâtre et papier peint
SolsStratifié semi-commercial / Carrelage (SdB)
Finition SdBPlafond en plaques de plâtre (blanc) & Murs entièrement carrelés
ÉQUIPEMENTS & OPTIONS
Eau & AssainissementInstallation réseaux incluse (lavabo, machine à laver, évier)
Eau chaudeChauffe-eau instantané 27 kW
SanitairesCabine de douche 90×90, WC suspendus (bâti-support) aux 2 étages, Lavabo avec meuble
ÉlectricitéCâblage cuivre, LED, Tableau avec protections et RCD
ChauffageÉlectrique (prises prévues) + Chauffage au sol (RDC & SdB étage)
ClimatisationPrise et renfort mural inclus (pose en option)
CuisineMeubles de cuisine inclus (avec raccordements)
Option SalonCheminée
Option ExtérieurTerrasse

Détails technique

À partir de

171 250€
Dès 0€/mois
Fabrication en 3 semaines
Livraison en jours
Installation en jours