Catalogue et nouveau site bientôt disponibles

Chantal 70

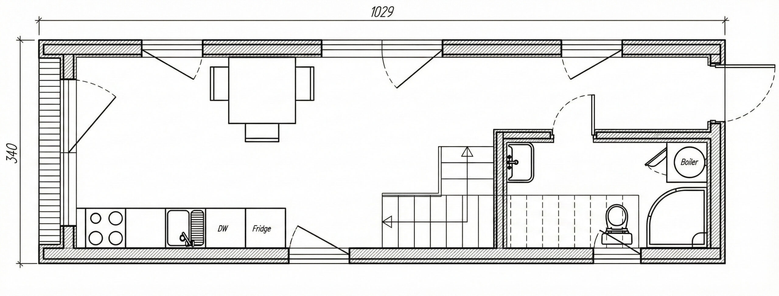
Surface · 70 m²
Chambre · 2
Salles de bain · 1
WC ·
Structure: Ossature bois
Usage: Airbnb
Réf.

À partir de

85 625€
Dès 0€/mois
Fabrication en 2 semaines
Livraison en jours
Installation en jours

Plan 2D

Spécifications

GÉNÉRAL
Nombre de modules2
Surface totale70 m²
Dimensions extérieures10.29 x 3.4 x 6.6 m (L x l x H)
Dimensions de transport10.5 x 3.55 x 3.3 m (L x l x H)
Hauteur sous plafond2.85 m / 1.42 – 2.69 m
IsolationPlancher/Plafond : 200/150 mm (laine minérale)
Murs : 150 mm (laine basaltique)
StructureBois sec calibré, protégé par traitement biologique
FINITIONS
ToitureProfil trapézoïdal
Façade extérieureCombinaison de profil trapézoïdal et d’épicéa scandinave
FenêtresDouble vitrage métal-plastique laminé (Haute performance)
PortesEntrée métal-plastique, Intérieures MDF
Murs intérieursPanneaux en bois naturel ou panneaux stratifiés
SolsStratifié semi-commercial / Carrelage (SdB)
Finition SdBPlafond en plaques de plâtre (blanc) & Murs entièrement carrelés
ÉQUIPEMENTS & OPTIONS
Eau & AssainissementInstallation réseaux incluse (lavabo, machine à laver, évier)
Eau chaudeBallon d’eau chaude 80 L
SanitairesCabine de douche 90×90, WC suspendu (bâti-support encastré)
ÉlectricitéCâblage cuivre, LED, Tableau avec protections et RCD
ChauffageÉlectrique (prises prévues sous fenêtres)
ClimatisationPrise et renfort mural inclus (pose en option)
CuisineRaccordements pour évier et plaque de cuisson
Option LavaboLavabo avec meuble
Option ChauffageChauffage au sol
Option CuisineMeubles de cuisine
Option SalonCheminée
Option ExtérieurTerrasse

Détails technique

À partir de

85 625€
Dès 0€/mois
Fabrication en 2 semaines
Livraison en jours
Installation en jours