Aller au contenu
Catalogue et nouveau site bientôt disponibles
Accueil
Catalogue
Consultation
Contact
Accueil
Catalogue
Consultation
Contact
Obtenir un devis
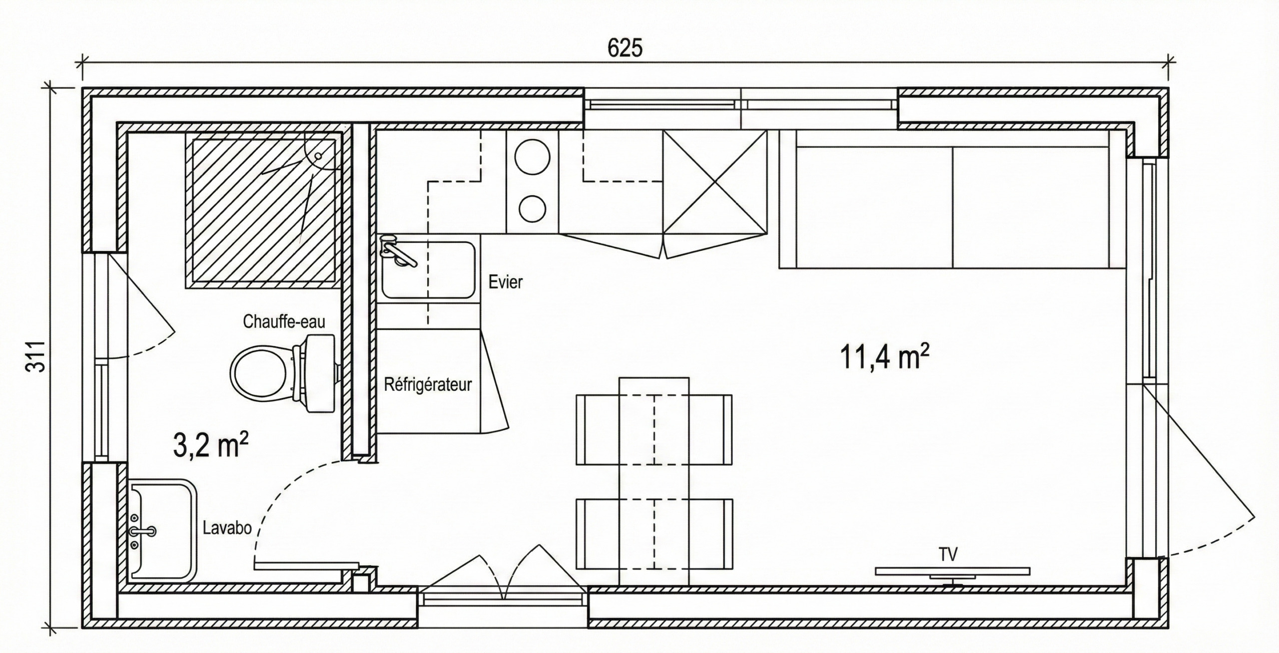
Ethel 20
Surface · 20 m²
Chambre · 1
Salles de bain · 1
WC · 1
Structure: Ossature bois
Usage: Airbnb
Réf.
À partir de
28 125€
Dès 0€/mois
Fabrication en 1 semaines
Livraison en 1 jours
Installation en 1 jours
Obtenir un devis
Plan 2D
Spécifications
GÉNÉRAL
Nombre de modules
1
Surface totale
20 m²
Dimensions extérieures
6.25 x 2.99 x 3.3 m (L x l x H)
Dimensions de transport
6.35 x 3.2 x 3.3 m (L x l x H)
Hauteur sous plafond
2.35 – 2.7 m
Isolation
Plancher/Plafond :
200/150 mm (laine minérale)
Murs :
150 mm (laine basaltique)
Structure
Bois sec calibré, traité
FINITIONS
Toiture
Tôle ondulée
Façade extérieure
Épicéa scandinave
Fenêtres
Double vitrage métal-plastique laminé
Portes
Entrée métal-plastique, Int. MDF
Murs intérieurs
Panneaux bois naturel
Sols
Stratifié (vie) / Carrelage (SdB)
Finition SdB
Panneaux bois naturel & Carrelage
ÉQUIPEMENTS & OPTIONS
Eau & Assainissement
Inclus (réseaux dans les murs)
Eau chaude
Ballon 80 L
Sanitaires
Douche 90×90, WC sur pied
Électricité
Tableau RCD, LED, Prises
Chauffage
Électrique (prises prêtes)
Climatisation
Prise et renfort inclus
Cuisine
Raccordements inclus
Option
Lavabo
Avec meuble
Option
Chauffage
Au sol
Option
Cuisine
Meubles
Option
Salon
Cheminée
Option
Extérieur
Terrasse
Détails technique
À partir de
28 125€
Dès 0€/mois
Fabrication en 1 semaines
Livraison en 1 jours
Installation en 1 jours
Obtenir un devis